Rannametsa 80 (elementmaja)
Projekti tutvustus
Saada projekti alusel elementmaja ehituse hinnapäring või telli ainult projekt ja ehita ise. Ainult joonised tellides on võimalik hoone projekteerida nii puit- kui kivimajana (Fibo, Bauroc, Columbia jms).
- Kõikide näidisprojektide põhjaplaane ja välisilmet on võimalik vajadusel muuta.
- Fassaadimaterjalina on muuhulgas võimalik kasutada puitlaudist, krohvi või kivi (saame erinevaid fassaadimaterjale kombineerida).
- Lõplik välisilme kujuneb üldjuhul maja tellija, projekteerija ja omavalitsuse koostöös.
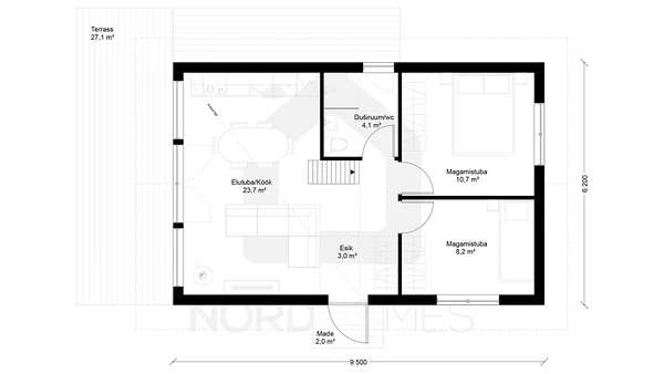
| Täpsemad andmed | |
|---|---|
| Korruste arv | 2 |
| Tubade arv | 4 |
| Ruumide kõrgus | kuni ca 4,7 m |
| Ehitusalune pind | 58,9 m² |
| Suletud netopind |
77,1 m² (49,7 m² + katusealune ruum 27,4 m²) |
| Auto-varjualune | (võimalik lisada) |
| Terrassi pind | 27,1 m² + peasissepääsu trepimade 2 m² |
Lemmikud projektid
Ava projektide filter
Kõik tulemused
kuni 50 m²
51 m² kuni 100 m²
101 m² kuni 150 m²
150 m² kuni 200 m²
201 m² ja rohkem
Kõik tulemused
1
2
3
4
5 ja rohkem
Kõik tulemused
Viilkatus
Lamekatus
Kõik tulemused
Classic
Country
Modern
Optima
Trend
